CONTACT US
浙江定典自控阀门有限公司
电话:0577-67159885
手机:13605872654
联系人:凌工
邮箱:544216003@qq.com
地 址:浙江省温州市永嘉县瓯北街道浦一村张宅巷22号(后间)

详细介绍
概述:
ZDJR电动O型切断球阀、ZDRO电动O型切断球阀适用于两位切断、调节的场合。阀与执行机构的连接采用直连方式,电动执行机构内置伺服系统,无须另配伺服放大器,输入4-20mA信号及220VAC电源即可控制运转。具有连线简单,结构紧凑、尺寸小、重量轻、阻力小、动作稳定可靠等优点。执行机构可根据用户要求另配置UNIC、PSQ、HQ、DHL等型号电子式电动执行机构或GTX、AL等气活塞式执行机构。
执行标准
1、设计与制造:GB12237-89、API608、API 6D、JPI 7S-48、BS5351、DIN3357。
2、法兰尺寸:JB/T74~90(JB74~90)、GB9112~9131、HGJ44~76、SH3406、ANSI B16.5、JIS B2212~2214、NF E29-211、DIN2543。
3、结构长度:GB12221-89、ANSI B16.10、JIS B2002、NF E29-305、DIN3202。 4、检验主试验:JB/T 9092、API 598。
电动球阀规格参数|
CH系列执行机构技术参数
|
阀体参数
|
|||
|
电源
|
AC200/220V,50/60Hz
|
公称通径
|
DN10~300mm
|
|
|
输出力矩
|
50N·M~2000N·M
|
公称压力
|
PN1.6 2.5 4.0 6.4 31.5MPa(定制)
|
|
|
动作范围
|
0~90° 0~360°
|
泄漏量
|
软密封:零泄漏
|
硬密封:≤额定流量的10-5
|
|
动作时间
|
15秒/30秒/60秒
|
执行机构
|
可另配PSQ、HQ、UNIC、361RS等系列电子式电动执行机构
|
|
|
保护装置
|
过热保护
|
流量特性
|
快开特性
|
|
|
环境温度
|
-30°~60°
|
可调范围
|
DN10-80
|
DN100-300
|
|
250:1
|
350:1
|
|||
|
手动操作
|
同附带手柄操作
|
基本误差
|
±1%
|
|
|
限位
|
电气、机械二重限位
|
死区
|
≤1%
|
|
|
防护等级
|
相当于IP-65
|
回差
|
≤1%
|
|
|
位置测量
|
可选装开关或电位计
|
适用温度
|
密封面
|
|
|
驱动电机
|
8W/E
|
PTFE≤150℃ RTFE≤180℃ PPL≤300℃ 硬密封≤450℃
|
||
| CH系列执行机构可直接接收计算机或工业仪表等输出的4~20mADC或1~5VDC控制信号,220VAC电源,根据阀位反馈信号与设定值比较偏差对执行机构驱动电机进行智能步距调整(PID调节),以实现与执行机构配套的阀门或其他装置开度的精确定位,同时输出4~20mADC的位置反馈信号。其核心控制部件电子式伺服控制器应用现代数字技术,对DCS/PLC规范设计而成,集信号采集、处理、反馈、控制于一体。采用独创的电子制动电路并附加机械阻尼装置消除惯性,可瞬时停机,定位时无振荡,定位精度可达0.3%以上。可控硅输出,动作时间快,输出稳定,可靠性高。体积小,轻便宜人,性能可靠,配套简单,流通能力大,特别适合于介质是粘稠,含颗粒,纤维性质的场合。目前该阀广泛应用于食品,环保,轻工,石油,造纸,化工,教学和科研设备,电力等行业的工业控制系数。 |
|
|
试验压力
(Mpa) |
公称压力(Mpa)
|
压力级(class)
|
JIS(Mpa)
|
|||||||
|
1.6
|
2.5
|
4.0
|
6.4
|
10.0
|
150
|
300
|
600
|
10K
|
20K
|
|
|
强度试验
|
2.4
|
3.8
|
6.0
|
9.6
|
15.0
|
3.1
|
7.8
|
15.3
|
2.4
|
3.8
|
|
密封试验
|
1.8
|
2.8
|
4.4
|
7.0
|
11.0
|
2.2
|
5.6
|
11.2
|
1.5
|
2.8
|
|
气密试验
|
0.5~0.7
|
|||||||||
|
零件名称
|
材 料
|
||||||
|
阀体
|
WCB
|
ZG1Cr18Ni9Ti
|
CF8
(304) |
CF3 |
ZG1Cr18Ni12Mo2Ti
|
CF8M(316)
|
CF3M
(316L) |
|
球体、阀杆
|
2Cr13
|
1Cr18Ni9Ti
|
0Cr19Ni9
(304) |
00Cr19Ni11
(304L) |
1Cr18Ni12Mo2Ti
|
0Cr17Ni12Mo2
(316) |
00Cr17Ni12Mo2
(316L) |
|
密封圈
|
聚四氟乙烯(PTFE)、增强聚四氟乙烯(PPL)、对位聚苯 柔性石墨
|
||||||
|
适用介质
|
水、气体、蒸汽、油品等
|
硝酸等腐蚀性介质
|
强氧化性介质
|
醋酸等腐蚀介质
|
尿素等腐蚀性介质
|
||
|
|
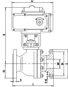
||||||||||||||||||||||||||||||||||||||||||||||||||||||||||||||||||||||||||||||||||||||||||
|
公称压力DN
|
L
|
D
|
H
|
L1
|
D1
|
b
|
Z-d1
|
H1
|
|
压力
|
1.6/2.5/4.0
|
1.6/2.5/4.0
|
|
|
1.6/2.5/4.0
|
1.6/2.5/4.0
|
1.6/2.5/4.0
|
|
|
15
|
130/130/140
|
95
|
275
|
157
|
65
|
14/16/16
|
4-14
|
48
|
|
20
|
140/140/150
|
105
|
280
|
157
|
75
|
14/16/16
|
4-14
|
53
|
|
25
|
150/150/165
|
115
|
287
|
157
|
85
|
14/16/16
|
4-14
|
58
|
|
32
|
165/165/180
|
135
|
354
|
208
|
100
|
16/16/18
|
4-18
|
68
|
|
40
|
180/180/200
|
145
|
312
|
208
|
110
|
16/16/18
|
4-18
|
73
|
|
50
|
200/200/220
|
160
|
325
|
208
|
125
|
16/20/20
|
4-18
|
80
|
|
65
|
220/220/250
|
180
|
335
|
256
|
145
|
18/22/22
|
4-18/8-18/8-18
|
90
|
|
80
|
250/250/280
|
195
|
365
|
256
|
160
|
20/22/22
|
8-18
|
98
|
|
100
|
280/280/320
|
215/230/230
|
400
|
256
|
180/190/190
|
20/24/24
|
8-18/8-23/8-23
|
120
|
|
125
|
320/320/360
|
245/270/270
|
420
|
256
|
210/220/220
|
24/28/30
|
8-23/8-25/8-25
|
140
|
|
150
|
360/360/400
|
280/300/300
|
440
|
256
|
240/250/250
|
24/28/30
|
8-23/8-25/8-25
|
167
|
|
200
|
400/400/550
|
335/360/375
|
470
|
256
|
295/310/320
|
26/34/38
|
12-23/12-25/12-30
|
210
|
|
250
|
630 750
|
405 470
|
545
|
380
|
|
|
|
|
|
300
|
750 870
|
460 530
|
580
|
380
|
|
|
|
|
三、当使用的场合非常重要或管路比较复杂时,请您尽量提供设计图纸和详细参数,由我们的专家为您审核把关。
感谢您访问我们的网站,如有任何疑问.您可以致电给我们,我们一定会尽心尽力为您提供优质的服务!
浙江定典自控阀门有限公司
地址:浙江省温州市永嘉县瓯北街道浦一村张宅巷22号(后间)
电话:0577-67159885
手机:13605872654(凌工) 18958788552(张工)
邮箱:544216003@qq.com
扫一扫 浏览网站
扫一扫 咨询沟通